Jakolic & Erbeznik

Die Arbeit

Projekte

Wir gestalten die Zukunft der Bauindustrie, ein Projekt nach dem anderen.

4,5-Zimmer und 2,5-Zimmer Wohnungen

Eines unserer laufenden Projekte ist die vollständige Renovierung von 2 Wohnungen auf derselben Etage. Eine 4,5-Zimmer-Wohnung und eine 2,5-Zimmer-Wohnung.

-Verlegung von Fliesen 
-Verlegung von Vinyl
-Verlegung der Wasserleitung für neue Sanitäranlagen
-Verlegung neuer Sanitäranlagen einschliesslich Zubehör
-Verlegung von Steinblöcken

Badezimmer

Ein weiteres unserer jüngsten Projekte ist
ein Badezimmer, das bisher nur mit einer Toilette und einem Waschbecken ausgestattet war, in das wir zusätzliche Sanitärelemente einbauen werden.

-Verlegen von Fliesen 
-Neue Wasserleitung und Abwasserleitung für die Dusche Verlegung der Wasser und Abwasserleitung für das Waschbecken und die Toilette
-Einbau neuer Sanitäreinrichtungen einschliesslich Zubehör

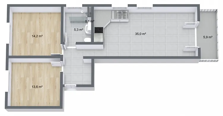
2,5-Zimmer Wohnung

Auch diese Wohnung wird gerade komplett renoviert.

Sie umfasst zwei Schlafzimmer, ein Badezimmer und ein Wohnzimmer.

-Verlegung von Fliesen -Verlegung von Vinyl
-Verlegung der Wasserleitung für neue Sanitäranlagen
-Einbau neuer Sanitäranlagen einschliesslich Zubehör
-Verlegung von Steinblöcken

3,5-Zimmer Wohnung

Die Wohnung wird Komplett Renoviert

Eine dusche wurde neu installiert bevor war nur ein waschbecken und die toilette vorhanden. 

-Fliesen verlegen
-Vinily verlegen
-Wechselposition der Wasserleitung für neue Sanitärapparate
-Neue Wasserleitung und Abwasserleitung für die Dusche
-Montage neuer Sanitärapparate inkl. Zubehör
-Steinblocke verlegen

top

Construction

From preconstruction to virtual design and construction, we offer a wide range of services to meet your building needs.

Design - Build

Certainty of outcome. It’s why our clients choose us for their most challenging Design/Build projects.

Pre-Construction Services

From engineering to preconstruction, we offer a variety of services and delivery methods.